MODERNES MEHRFAMILIENHAUS
IN KLEINOTTWEILER
Jägersburgerstraße 33
WOHNEN IN EINEM
MODERNEM MEHRFAMILIENHAUS
-
Wohnflächen von 36 m² bis 144 m²
-
Stellplätze direkt vor dem Haus
-
Garagen hinter dem Haus
-
Barrierefreie Wohnungen im Erdgeschoss
-
Moderne Energieversorgung
-
Balkone und Terrassen
-
Helle Wohnungen
-
Individuelle Innengestaltung
-
Aufzug

INFORMATION UND LAGEPLAN
-
Moderne Architektur
-
Gute Anbindung
-
barrierefreie Wohnungen
-
variable Wohnungsgrößen
-
​Baubeginn Herbst 2025

Rufen Sie uns an: 06826 / 93 33 922




DIE WOHNUNGEN IM DETAIL
Verschaffen Sie sich einen Überblick über die Grundrisse

WOHNUNG 1
Erdgeschoss
Wohnungsfläche inkl. ½ Balkon: 35,69 m²
Zimmer: 1
Badezimmer / WC: 1
Diele
Kellerraum
Balkon
​

WOHNUNG 2
Erdgeschoss
Wohnungsfläche inkl. ½ Terrasse: 74,03 m²
Zimmer: 3
Badezimmer / WC: 1
Diele
Kellerraum
Terrasse
Garten
​

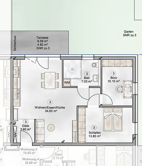
WOHNUNG 3
Erdgeschoss
Wohnungsfläche inkl. ½ Terrasse: 74,03 m²
Zimmer: 3
Badezimmer / WC: 1
Diele
Kellerraum
Terrasse
Garten
​​

WOHNUNG 4
Erdgeschoss
Wohnungsfläche inkl. ½ Terrasse: 35,69 m²
Zimmer: 1
Badezimmer / WC: 1
Diele
Kellerraum
Terrasse
Garten
​

WOHNUNG 5
Obergeschoss
Wohnungsfläche inkl. ½ Balkon: 49,21 m²
Zimmer: 2
Badezimmer / WC: 1
Diele
Kellerraum
Balkon

WOHNUNG 6
Obergeschoss
Wohnungsfläche inkl. ½ Balkon: 60,23 m²
Zimmer: 2
Badezimmer / WC: 1
Diele
Kellerraum
Balkon​
​

WOHNUNG 7
Obergeschoss
Wohnungsfläche inkl. ½ Balkon: 60,33 m²
Zimmer: 2
Badezimmer / WC: 1
Diele
Kellerraum
Balkon​
​

WOHNUNG 8
Obergeschoss
Wohnungsfläche inkl. ½ Balkon: 49,21 m²
Zimmer: 2
Badezimmer / WC: 1
Diele
Kellerraum
Balkon​
​

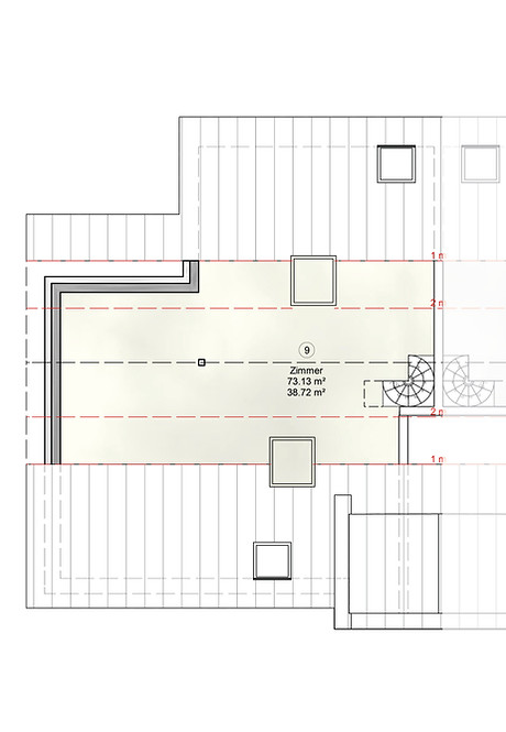
WOHNUNG 9
Dachgeschoss
Wohnungsfläche inkl. ½ Dachterrasse: 144,81 m²
Zimmer: 3
Badezimmer / WC: 2
Diele
Kellerraum
Dachterrasse​
​

STUDIO ZU WOHNUNG 9
Dachgeschoss
Zimmer: 1
​

WOHNUNG 10
Dachgeschoss
Wohnungsfläche inkl. ½ Dachterrasse: 131,49 m²
Zimmer: 3
Badezimmer / WC: 2
Diele
Kellerraum
Dachterrasse​
​

STUDIO ZU WOHNUNG 10
Dachgeschoss
Zimmer: 1
​
Alternative Wohnungsgrößen

Die Visualisierungen sind urheberrechtlich geschützt und nicht zur Maßentnahme geeignet.
Die Darstellungen können von den tatsächlichen Ausführungen abweichen.





